关联公告
暂无关联公告
(预披露)贵阳铁投卓信置业有限责任公司经典天成三期双龙数据工场大厦底层商业项目招租
2026-02-05
项目名称:(预披露)贵阳铁投卓信置业有限责任公司经典天成三期双龙数据工场大厦底层商业项目招租
项目编号:GP-R-ZL-2026004(004)
国资监测编号: --
信息披露日期: 至
一、项目概况
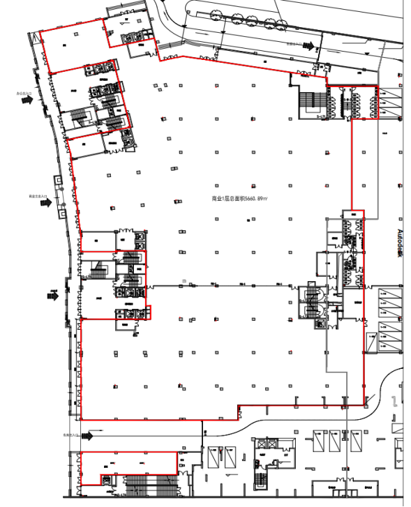
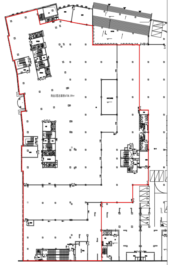
本次拟出租商业位于贵州双龙航空港经济区见龙洞路50号经典天成三期双龙数据工场大厦底层,紧邻机场路。位置如下:



项目由贵阳铁投卓信置业有限责任公司投资开发建设,于2018年10月投入使用。该栋建筑共12层,地下一层为停车库,地上1、2层前部为商业,后部为停车库,3层部分架空并设置幼儿园,上部9层为5A级写字楼。本次拟出租商业建筑面积共12399.48㎡,其中:一层面积5660.89㎡,层高5.4米;二层面积6738.59㎡,层高4.8米(局部5.8米)。本商业建筑结构为框架结构,大幅度基础柱跨的大空间,后期可以实现灵活分隔,营造出丰富多样的空间,采光通风良好,并配备了6台专用电梯、5部疏散楼梯,负一层及一层地下停车位571个,保证商业用户的使用需求,一层商业门前商业广场面积近3000㎡。该商业现状为毛坯状态,建筑平面见附图:
一层平面图:

二层平面图:

二、联系方式
联系人:何经理 0851-86793166
联系地址:贵阳市观山湖区联合广场A座4楼417室
