(预披露)贵州建投集团所属泰豪e时代24套公寓整体出租或分租
贵州建投集团现诚意推出贵安新区泰豪E时代5栋7层24套优质公寓面向社会公开招租,诚邀各企业机构入驻,携手共创商务新未来!
一、物业概况
贵安新区泰豪E时代项目位于贵州省贵阳市贵安新区产业大道与聚源路交汇处,本次拟出租的7层建筑面积1096.83平方米,整层出租,开阔空间为企业发展提供无限可能。无论是中小型企业拓展业务,还是大型企业设立分部,这里都能满足多样化办公需求。
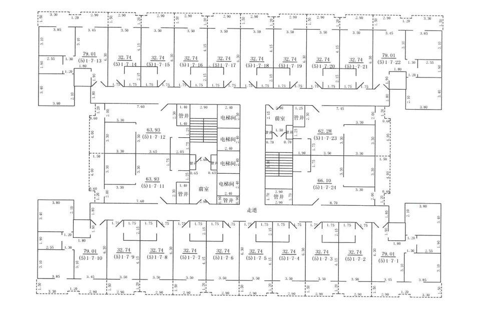
二、物业及房间布局照片





七层房间设计布局

三、资源优势
贵安新区泰豪E时代位于贵安新区黄金地段,商业氛围浓郁,交通网络四通八达,不仅能为企业营造高效的商务环境,还极大方便员工通勤与日常生活,是企业办公、发展酒店民宿等休闲娱乐业态选址的理想之选。
商业配套完善:大厦周边商业资源丰富,毗邻泰豪E时代商业步行街。在这里,企业员工午休时可轻松享受购物、餐饮、娱乐一站式服务,商务洽谈也有多元的休闲场所可供选择,充分满足企业及员工的各类生活需求。
交通出行便利:标的周边交通优势显著,距离金河路口公交站仅约200米,离聚源路口公交站仅约300米,商业综合体下即为公交站台,提升周边通勤效率,也便于企业客户来访,有效降低商务沟通成本。
四、出租详情
租赁区域灵活:本次招租可选择整体租赁7层,灵活的租赁方式充分满足不同企业的规模与需求。所有租赁区域均为现状(毛坯)出租,企业入驻后可根据自身风格与业务需求快速开展装修布置,节省时间与成本。
租赁用途与期限:租赁用途限定为办公运营和酒店民宿业态。租赁期限5年以内,合作方可根据自身发展规划,选择合适的租赁时长。
租金标准:租金按面积*单价*月计费,具体租金价格以资产租赁评估价格及现行租赁价格为参考,采取“一单一议”的方式,我们将与意向承租方进行深入洽谈,提供具有市场竞争力的租金方案,确保合作共赢。
泰豪E时代优质房源数量有限,商机转瞬即逝!如您对本次招租感兴趣,欢迎随时致电咨询或实地考察。期待与您携手,共筑辉煌事业!
五、联系方式
产权方联系人:樊先生、叶先生、张先生、付女士
电 话:0851-84601304
阳光产权交易所联系人:耿经理
电 话:0851-86793166
如对上述拟转让资产有意向的投资方(中国境内依法设立并合法存续的企业法人或其它组织),欢迎来电垂询。
